节能防腐风机
修改时间:2025-05-28 20:08:00 浏览:1553224次 作者:万通
| 产品名称: | FPE型A式节能防腐风机 | 产品简介: | FPE型A式节能防腐风机是一种采用PP(聚丙烯)或PE(聚乙烯)材质塑料制成的离心式风机,具有极强的耐腐蚀性,适用于强酸、强碱、有机溶剂等恶劣环境。其“A式”驱动方式(电机直联)结构紧凑,运行稳定,广泛应用于化工、电镀、实验室等腐蚀性气体排放场合。
1. 型号含义 F:高级防腐处理(Glass Fiber Reinforced)。 P:PE塑料:材质为PP(聚丙烯)或PE(聚乙烯)增强塑料,具有耐酸碱、防腐蚀等特点。 4:代表风机的压力系数(中低压范围)。 72:代表风机的比转速(属于高效率风机系列)。 A式:驱动方式为“直联传动”(电机与叶轮直接连接,无皮带轮)。 二、主要应用场景 1. 化工行业 • 酸雾废气处理(硫酸、盐酸、硝酸等)。 • 有机溶剂挥发气体排放(苯类、醇类、酮类等)。 2. 电镀与表面处理 • 铬酸雾、氰化物废气、磷酸废气排放。 • 阳极氧化、酸洗车间排风。 3. 环保与废气处理 • 配套洗涤塔、活性炭吸附塔使用。 • 实验室通风柜、PCR实验室排风。 4. 其他特殊环境 • 制药厂(腐蚀性药物挥发气体)。 • 污水处理厂(硫化氢、氨气等腐蚀性气体)。 • 食品加工(含盐雾、酸性蒸汽环境)。 三、产品特点 1. 材质优势(PP聚丙烯、PE聚乙烯) • 耐强酸强碱:可耐受pH 1~14的腐蚀性介质。 • 轻量化:比玻璃钢(FRP)更轻,安装方便。 • 抗老化:部分型号可添加抗UV剂,适用于户外环境。 2. 结构设计 • A式直联传动:电机与叶轮直接连接,结构紧凑,效率高。 • 离心式叶轮:中高压风量,适合长距离管道送排风。 • 可定制进风口方向:0°、90°、180°等多种角度可选。 3. 电机与性能 • 防爆电机可选(ExdⅡBT4),适用于易燃易爆环境。 • 变频控制:适应不同工况风量调节。 • 低噪音:优化叶轮设计,运行噪音≤75dB(A)。 4. 特殊改进型号 • HPE-C型(皮带传动,适用于大功率需求)。 • HPE-B型(防爆加强型,用于高浓度腐蚀性气体)。 四、选型与安装要点 1. 选型参数 • 参数 说明 • 风量(m³/h) 根据废气量计算(如5000~20000m³/h) • 全压(Pa) 需考虑管道阻力(通常800~2500Pa) • 介质温度 PP材质一般适用-10℃~80℃,高温需特殊定制 • 电机功率(kW) 根据风量、风压匹配(如2.2kW~30kW) 2. 安装方式 • 支架安装:固定在混凝土基础或钢架上,需防震处理。 • 管道连接:法兰对接,需密封防漏(可用PP法兰或橡胶垫片)。 • 户外安装:建议加装防雨罩,避免阳光直射加速老化。 3. 维护与保养 • 定期检查:叶轮是否腐蚀、变形,螺栓是否松动。 • 清洁:用清水或中性清洁剂冲洗,避免有机溶剂擦拭。 • 电机保养:按标准润滑,检查绝缘性能。 |

-
-
01 CRC质量管理体系认证
风机测试符合JB/T 10563-2006国家标准的要求,风机设备连续运行24小时不损坏,长久使用寿命,节能高效(省电),为您创造利润,节省成本。全机组进行电脑应力应变分析,提高结构强度。
-
02 保养操作简单
采用紧凑的叶轮设计结构满足风机的高转速运行。叶片设计风量大,延长使用寿命,降低故障频率,模组化生产,规格统一,零配件材料齐全,可在短时间内、节约成本,快速完成安装维修。
-
03 提供服务团队
1对1服务,提供到公司测量性能、震动,提供测试报告,防范故障于未然,保障风机在最佳状况下运转。可针对客户的特殊规格,量身定制设计,确保风机运转于最高效率点。
FPE型A式节能防腐风机 FPE型A式节能防腐风机是我司自主研发的专利风机产品,专利公开号为 CN216691523U、CN214837261U、CN212376957U、CN306763030S 产品核心部件风机蜗壳及风机叶轮采用模压一体成型。该系列风机具有强度高、效率高、能耗低、噪音低、重量轻、风量风压大、不易老化、运转平稳、耐腐蚀性能良好、便于安装等特点。用于输送或排放腐蚀性和高湿度的烟气、雾汽或化工酸碱异味气体。所输送气体不允许含有粘性物质、所含粉尘及硬质颗粒≤150mg/m3、气体温度≤60℃、相对湿度≤100%,适合排放腐蚀性的烟雾和气体:硫酸,硫磺酸,硝酸,氮酸,氢氟酸,鲍里斯酸,氢氰酸,盐酸,氨,苏打,乙醇,氢氧化钾,甲醇,丙烷,苯,甲醛等
FPE type A energy-saving anti-corrosion fan FPE type A energy-saving anti-corrosion fan It is a patented fan product independently developed by our company. The patent number is CN216691523U CN214837261U CN212376957U CN306763030S. The core parts of the product are fan volute and fan impeller which are molded in one. This series of fans have the characteristics of high strength high efficiency low energy consumption low noise light weight high air volume and pressure not easy to age stable operation good corrosion resistance easy to install and so on. Used to transport or discharge corrosive and high humidity flue gas fog or chemical acid and base odor gas. The transported gas is not allowed to contain viscous substances dust and hard particles≤150mg/m3 gas temperature≤60℃ relative humidity≤100% suitable for the emission of corrosive fumes and gases: sulfuric acid sulfonic acid nitric acid nitrogenous acid hydrofluoric acid Boris acid hydrocyanic acid hydrochloric acid ammonia soda ethanol potassium hydroxide methanol propane benzene formaldehyde etc
机 号
Model(No)功 率
Power(Kw)转 速
Speed(r/min)流 量
Volume(M3/h)全 压
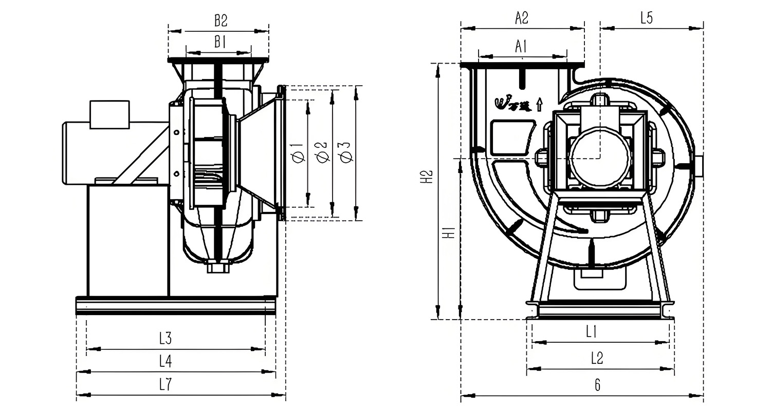
Pressure(Pa)2.8A 0.75 1450 509-1152 286-76 1.1 2900 1018-2035 1144-304 3.2A 0.75 1450 760-1720 342-99 1.5 2900 1520-3440 1494-397 3.6A 1.1 1450 1082-2449 472-125 2.2 2900 2165-4899 1891-502 4.0A 1.1 1450 1485-3360 583-115 3 2900 2636-5894 2227-553 4 2900 2970-6720 2335-620 5.0A 1.5 1450 2568-5798 884-198 2.2 1450 2613-5822 861-206 7.5 2900 5137-11596 3377-793 6.0A 1.5 960 3318-7508 579-153 4 1450 5012-11341 1313-349 5.5 1450 5512-12475 1443-384 7.0A 7.5 1450 7959-18009 1787-475 11 1450 8755-19809 1967-523 8.0A 7.5 960 7866-17798 1023-272 15 1450 11881-26882 2335-620 外形及安装尺寸示意图 Lnstallation size diagram
产品为人工实物测量会有一定误差,相关数据仅作参考。 单位Unit: mm(毫米)
机号 入风口 Air inlet 出风口 Vent 外形尺寸 Shape size 底架尺寸 Frame size NO Φ1 Φ2 Φ3 A1 A2 B1 B2 H1 H2 L5 L6 L7 L1 L2 L3 L4 2.8A 266 321 345 224 326 130 232 420 675 263 622 521 332 360 430 490 3.2A 310 366 390 256 386 188 290 480 740 297 700 605 396 425 515 557 3.6A 346 404 434 288 390 188 290 500 810 342 789 641 398 430 550 610 4.0A 390 452 480 320 422 258 360 492 815 363 485 727 482 460 640 700 5.0A 488 554 584 400 502 328 430 585 996 433 1044 760 487 510 672 732 6.0A 590 664 700 480 602 398 520 697 1174 539 1260 858 558 590 550 838 7.0A 690 780 816 556 682 474 600 793 1324 616 1447 1006 664 680 702 972 8.0A 753 886 651 777 524 650 890 1479 701 1642 1290 810 830 930 1066 -
在线留言
联系我们
如果您对节能防腐风机的技术参数或其他问题感兴趣,请留下您的详细信息,我们将在24小时内安排销售经理给您回复。- 万通风机
厂家直销
- 万通风机
提供检验报告
- 万通风机
售后有保障
地址:广州市番禺区沙湾镇动车街33号之二
电话:
节能耐腐蚀风机
FPE型C式可输送硫酸、硫磺酸、硝酸、氮酸、氢氟酸、鲍里斯酸、氢氰酸、盐酸,氨、苏打、乙醇、氢氧化钾、甲醇、丙烷、苯、甲醛等腐蚀性有毒气体。
塑料防腐风机
HPE型C式广泛应用于科研、化工、电镀、冶金、电子、医药、实验室通风柜以及环保配套设备等含有腐蚀性气体的场所。
通用防腐风机
WT4-72型A式风机蜗壳、风轮采用模压一体成型,进出风都采用标准圆形接口(160、200、250、300)非常方便接标准的塑料管道。
节能高效风机
HPE型A式具有强度高、能耗低、效率高、噪音低、重量轻、风量风压大、不易老化、运转平稳、耐腐蚀性能良好、便于安装等特点。
产品规格 / Product Specifications
- FPE-2.8A-0.75Kw建水节能防腐风机
FPE-2.8A-1.1Kw围场节能防腐风机
FPE-3.2A-0.75Kw荥经节能防腐风机
FPE-3.2A-1.5Kw湖南节能防腐风机
FPE-3.6A-1.1Kw南华节能防腐风机
FPE-3.6A-2.2Kw米林节能防腐风机
FPE-4.0A-1.1Kw五台节能防腐风机
FPE-4.0A-3Kw嘉黎节能防腐风机
FPE-4.0A-4Kw松山湖节能防腐风机
FPE-5.0A-1.5Kw聂拉木节能防腐风机
FPE-5.0A-2.2Kw集安节能防腐风机
FPE-5.0A-7.5Kw宁城节能防腐风机
FPE-6.0A-1.5Kw疏附节能防腐风机
FPE-6.0A-4Kw蒙山节能防腐风机
FPE-6.0A-5.5Kw吴桥节能防腐风机
FPE-7.0A-7.5Kw沙河节能防腐风机
FPE-7.0A-11Kw兴安盟节能防腐风机
FPE-8.0A-7.5Kw弋阳节能防腐风机
FPE-8.0A-15Kw舒兰节能防腐风机







