废气处理塔
修改时间:2025-05-28 20:08:00 浏览:1930658次 作者:万通
| 产品名称: | 废气处理塔 | 产品简介: | 废气处理塔(又称废气洗涤塔、废气净化塔)是工业废气处理中常用的设备,主要用于去除废气中的颗粒物、有害气体(如酸性气体、有机污染物等)或异味。其工作原理通常基于物理吸收、化学反应或生物降解等机制,具体设计因处理目标而异。以下是废气处理塔的常见类型、结构和工作原理的详细介绍: 一、废气处理塔的主要类型 喷淋塔(湿式洗涤塔) • 原理:通过喷淋液(水或化学溶液)与废气逆流接触,利用液滴捕集颗粒物或溶解有害气体。 • 应用:处理粉尘、SO₂、HCl、NH₃等水溶性气体。 • 特点:结构简单,但对非水溶性污染物(如VOCs)效果有限。 填料塔 • 原理:塔内填充高效填料(如鲍尔环、拉西环),增大气液接触面积,提升传质效率。 • 应用:适用于酸性气体(如H₂S、NOx)或需化学反应的废气处理(如碱液吸收SO₂)。 活性炭吸附塔 • 原理:利用活性炭的微孔结构吸附有机废气(VOCs)或异味。 • 应用:印刷、喷涂、化工等行业的低浓度VOCs处理。 • 特点:需定期更换或再生活性炭。 生物滤塔 • 原理:利用微生物降解废气中的有机物(如恶臭物质)。 • 应用:污水处理厂、食品加工厂的异味控制。 等离子塔/UV光氧塔 • 原理:通过高压电场或紫外线分解有机物,适用于难降解VOCs。 二、废气处理塔的核心结构 • 塔体:通常由PP(聚丙烯)、FRP(玻璃钢)或不锈钢制成,耐腐蚀。 • 喷淋系统:包括喷嘴、循环泵、水箱,用于喷洒吸收液。 • 填料层(湿式塔):增强气液接触,提高污染物去除率。 • 除雾器:去除废气中夹带的液滴,避免二次污染。 • 监测系统:pH计、流量计等,用于控制处理效果。 三、工作流程示例(以酸雾处理为例) • 废气收集:酸性废气(如HCl)通过风管进入塔体底部。 • 喷淋吸收:碱液(如NaOH溶液)从上向下喷淋,与上升的废气发生中和反应。 • 填料层强化:填料表面形成液膜,进一步吸收残留气体。 • 除雾排放:净化后的气体经除雾器干燥后达标排放。 • 废液处理:循环液饱和后需中和处理或更换。 四、关键设计参数 • 空塔气速:一般0.5~1.5 m/s,过高会导致液泛。 • 液气比(L/G):通常1~10 L/m³,影响吸收效率。 • pH控制:化学吸收时需实时调节喷淋液pH(如用NaOH调节)。 五、选型与维护要点 • 选型依据:废气成分、浓度、温度、风量等。 • 防堵塞:高粉尘废气需预过滤,避免填料堵塞。 • 防腐:处理腐蚀性气体时选择PP/FRP材质。 • 能耗:循环泵和风机的功率需优化以降低运行成本。 六、常见问题与解决 • 效率下降:检查喷嘴堵塞、填料结垢或活性炭饱和。 • 二次污染:废液需合规处置,避免随意排放。 • 异味残留:可能需组合工艺(如喷淋+活性炭吸附)。 |

-
-
01 产品特色
结合国内外先进技术设计制造,精选知名品牌配件,设备运行稳定、高效净化、安全可靠、运营成本低。数十个行业应用,助力1000多家企业污染排放100%稳定达标。
-
02 企业实力
十余年专注从事废气污染防治设备设计研发,20000平方米生产基地,年产废气设备5000台以上“万通风机”是制造,质量、服务、信誉AAA企业!获得多项国家专利及资质证书,行业好口碑!
-
03 服务特色
1对1服务,免费提供技术支持培训服务技术理论、使用操作、维护保养全面指导。可针对客户的特殊规格,为您量身定制废气净化排放方案,确保废气净化设备运转于最高效率点。
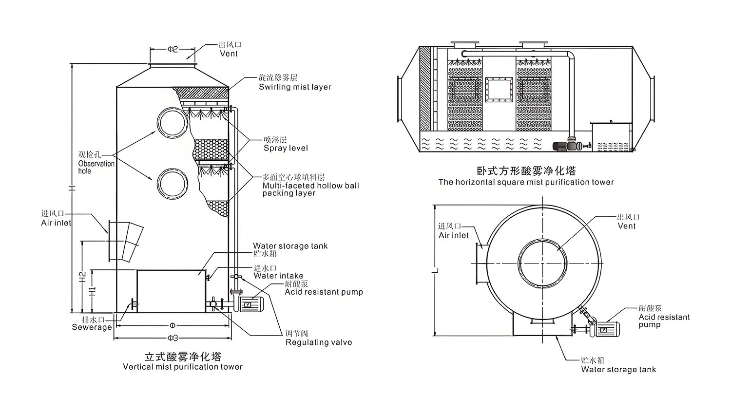
洗涤塔 设备原理:对于腐蚀性气体(如酸、碱性废气)的治理,目前多采用液体吸收法治理。采用液体吸收法治理该废气,关键在于净化设备的选择。目前,我公司自主开发了净化效率高、操作管理简单、使用寿命长的酸、碱性废气净化工艺与设备。该工艺与产品具有结构简单、能耗低、净化效率高和适用范围广的特点,能有效去除氯化氢气体(HCl)、氟化氢气体(HF)、氨气(NH3)、硫酸雾(H₂SO。)、铬酸雾(CrO,)、氰氢酸气体(HCN)、碱蒸气(NaOH)、硫化氢气体(H2S)、福尔马林(HCHO)等水溶性气体。酸雾废气由风管引入净化塔,经过填料层,废气与氢氧化钠吸收液进行气液两相充分接触吸收中和反应,酸雾废气经过净化后,再经除雾板脱水除雾后由风机排入大气。吸收液在塔底经水泵增压后在塔顶喷淋而下,最后回流至塔底循环使用。净化后的酸雾废气达到广东省地方排放标准的排放要求,低于国家排放标准。
设备特点: 本设备采用填料塔对废气进行净化,适合于连续和间歇排放废气的治理;工艺简单,管理、操作及维修相当方便简洁,不会对车间的生产造成任何影响;适用范围广,可同时净化多种污染物;压降较低,操作弹性大,且具有很好的除雾性能;塔体可根据实际情况采用玻璃钢/不锈钢/PP塑料/PVC塑料材料制作;填料采用高效、低阻的鲍尔环,可彻底地去除气体中的异味、有害物质等。
结构形式: 本设备分单塔体和双塔体。采用圆形塔体,用法兰分段联接而成。具体由贮液箱、塔体、进风段、喷淋层、填料层、旋流除雾层、出风锥帽、观检孔等组成。
产品用途: 本设备可广泛应用于化工、电子、冶金、电镀、纺织(化纤)、食品、机械制造等行业过程中排放的酸、碱性废气的净化处理。如调味食品、制酸、酸洗、电镀、电解、蓄电池等。Washing tower Principle of equipment: For the treatment of corrosive gases (such as acid and alkaline waste gas) liquid absorption method is mostly used at present. Using liquid absorption to treat the waste gas is the key to the selection of purification equipment. At present our company has independently developed acid and alkaline waste gas purification process and equipment with high purification efficiency simple operation and management and long service life. The process and products have the characteristics of simple structure low energy consumption high purification efficiency and wide application range can effectively remove hydrogen chloride gas (HCl) hydrogen fluoride gas (HF) ammonia gas (NH3) sulfuric acid fog (H₂SO). Chromic acid mist (CrO,) cyanuric acid gas (HCN) alkali vapor (NaOH) hydrogen sulfide gas (H2S) formalin (HCHO) and other water-soluble gas. Acid fog exhaust gas is introduced into the purification tower by the air duct and through the packing layer the exhaust gas and sodium hydroxide absorption liquid are fully contacted absorbed and neutralized. After purification the acid fog exhaust gas is dehydrated and defogged by the defogging plate and discharged into the atmosphere by the fan. The absorption liquid is pressurized by the pump at the bottom of the tower and sprayed down at the top of the tower and finally returned to the bottom of the tower for recycling. The purified acid fog exhaust gas meets the emission requirements of Guangdong provincial emission standards lower than the national emission standards.
Equipment features:The equipment uses packed tower to purify the exhaust gas suitable for continuous and intermittent exhaust gas treatment; Simple process management operation and maintenance is quite convenient and simple will not cause any impact on the production of the workshop; Wide range of application can simultaneously purify a variety of pollutants; Low pressure drop large operation elasticity and has good defogging performance; The tower body can be made of FRP/stainless steel /PP plastic /PVC plastic material according to the actual situation; The packing uses the Pall ring with high efficiency and low resistance which can completely remove the odor and harmful substances in the gas
Structure form:The equipment is divided into single tower body and double tower body. The circular tower body is connected with flange segments. It is composed of liquid storage tank tower body air inlet section spray layer packing layer cyclone defogging layer air cone cap inspection hole and so on
Product use:This equipment can be widely used in chemical industry electronics metallurgy electroplating textile (chemical fiber) food machinery manufacturing and other industries in the process of acid alkaline waste gas purification treatment. Such as flavoring food acid pickling electroplating electrolysis battery and so on型 号 设计风量
(M3/h)配用风机
型号(No)配用风机
功率(Kw)配用风机
风量(M3/h)配用风机
全压(Pa)配用耐酸水泵
型号(No)配用耐酸水泵
功率(KW)配用耐酸水泵
风量(M3/h)BJT-650 1500 F4-72-3.6A 1.1 1332-2634 Y2-801-2 0.75 9 BJT-800 3000 F4-72-4.5A 1.1 2712-5084 Y90S-2 1.5 12 BJT-1000 5000 F4-72-5A 2.2 4096-6952 Y90S-2 1.5 12 BJT-1200 8000 F4-72-6A 4 6291-14124 Y2-90L-2 2.2 24 BJT-1400 10000 F4-72-6C 5.5 8288-16575 Y2-90L-2 2.2 24 BJT-1500 13000 F4-72-6C 11 12000-15890 Y2-90L-2 2.2 24 BJT-1650 15000 F4-72-8C 7.5 12224-16705 1209-1166 Y2-112M-2 4 33 BJT-2000 20000 F4-72-10C 11 22312-31230 Y2-112M-2 4 33 BJT-2400 24000 F4-72-10C 15 25100-34000 Y2-112M-2 4 33 BJT-3000 30000 F4-72-12C 18.5 28170-37000 850-720 Y2-112M-2 5.5 39 BJT-3500 35000 F4-72-12C 30 34218-47800 1090-850 Y2-132S2-2 7.5 37 酸雾初试浓度 HCL<1000mg/m3 净化效率 95~99% H2SO4<1000mg/m3 92~98% NH3<100mg/m3 95% HCN<100mg/m3 90~95% CrO3<500mg/m3 92~98% 注:以上性能仅供参考,不作客户实际操作使用。 客户如需增加净化效率可增高塔体、增加喷淋、净化层,详细请与我司联络。 中和液NaOH溶液尝试 2-6% 净化塔阻力(Pa) 400 外形及安装尺寸示意图 Lnstallation size diagram
产品为人工实物测量会有一定误差,相关数据仅作参考。 单位Unit: mm(毫米)
型号
外观尺寸BJT650 BJT800 BJT1000 BJT1200 BJT1400 BJT1500 BJT1650 BJT2000 BJT2400 BJT3000 BJT3500 ø 650 800 1000 1200 1400 1500 1650 2000 2400 3000 3500 ø1 300 350 400 400 500 500 600 800 800 1000 1200 ø2 300 350 400 400 500 500 600 800 800 1000 1200 ø3 750 900 1100 1300 1500 1600 1750 2100 2500 3100 3600 H 3000 3100 3600 3900 3900 3900 4200 4800 5400 6000 6000 H1 500 500 600 600 600 600 600 600 800 800 800 H2 750 800 900 900 1000 1000 1200 1300 1500 1500 1800 L 1000 1200 1600 1800 2000 2000 2200 2800 3200 3800 4300 -
在线留言
联系我们
如果您对废气处理塔的技术参数或其他问题感兴趣,请留下您的详细信息,我们将在24小时内安排销售经理给您回复。- 万通风机
厂家直销
- 万通风机
提供检验报告
- 万通风机
售后有保障
地址:广州市番禺区沙湾镇动车街33号之二
电话:
废气塔
具有结构简单、占地面积小、阻力小、能耗低、噪音低、结构紧凑、操作简单、净化效率高和适用范围广的特点,能高效去除有毒废气污染气体
吸收塔
对于腐蚀性气体(如酸、碱性废气)的治理,目前多采用液体吸收法治理。采用液体吸收法治理该废气,关键在于净化设备的选择
废气处理塔
利用气体与液体间的接触,而将气体中的污染物传送到液体中,然后再将清洁气体与被污染的液体分离,达到清净空气的目的
脱硫塔
本设备分单塔体和双塔体。采用圆形塔体,用法兰分段联接而成。具体由贮液箱、塔体、进风段、喷淋层、填料层、旋流除雾层、出风锥帽、观检孔等组成







